Unsere aktuellen Projekte




Projekt in Planung
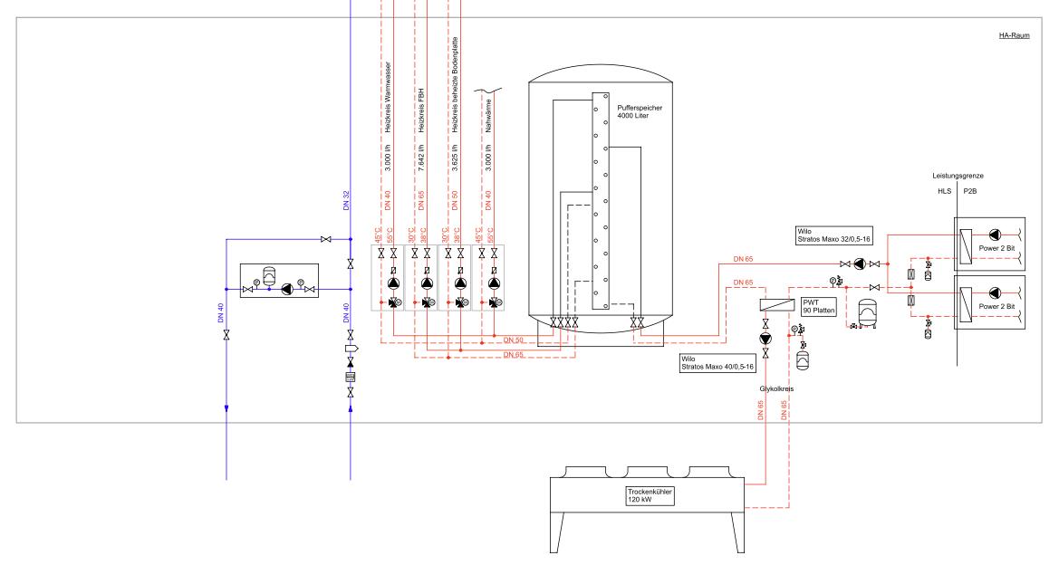
Servicehalle mit 120 kW Heizleistung

Diese Anlage wird künftig Heizlasten von bis zu 120 kW und mehr abdecken. Ein Pufferspeicher dient zur Unterstützung. Außerdem kann die Anlage im Sommer über einen Trockenkühler betrieben werden. In Zeiten mit geringerem Wärmebedarf – etwa im Sommer – kann sie dennoch flexibel ein- und ausgeschaltet werden, um das Stromnetz zumindest teilweise zu entlasten.